

Стропила для жилых зданий чаще всего изготавливают из древесины. Такие стропильные системы обычно выполняются в форме треугольника, хотя иногда используются и другие конструкции.
При необходимости экономии жилого пространства используют стропильные мансардные системы, позволяющие оборудовать в чердачном помещении еще одну жилую комнату.
Проектирование стропильных систем и стропил
Проектирование системы стропил является довольно сложной задачей, требующей специальных навыков и знаний. Для этого необходимо правильно произвести расчет снега и ветра, оптимальный вес системы.
Поэтому наибольшей эффективности и долговечности построенного дома можно добиться в том случае, если расчет и чертеж стропильной системы выполняет грамотный квалифицированный специалист, имеющий опыт выполнения подобных работ.
Наиболее важными моментами, учитываемыми при проектировании кровли, являются:
- Тип возводимой крыши;
- Углы наклона скатов;
- Материал, используемый для покрытия кровли;
- выбор сечения стропил;
- Расчет конструкций системы стропил.


При этом величина наклона скатов влияет также на расчет прочности несущей конструкции и выбор материала, которым будет покрыта кровля.
Большинство таких материалов напрямую влияют на проект стропильной системы, следовательно, материал для покрытия необходимо выбирать еще на этапе проектирования.
Стропильную конструкцию следует тщательно рассчитывать, выполняя проектирование кровли, поскольку допущенные при оценке нагрузок недочеты могут вызвать как деформацию конструкции стропил и нарушение покрытия кровли в процессе эксплуатации, так и обрушение всей крыши.
Несущие конструкции кровли, состоящие в случае скатной кровли из обрешетки и стропил, обеспечивают ее устойчивость и прочность.
Конструктивная схема расположения стропил зависит от следующих параметров:
- Форма крыши;
- Наличие внутренних опор и их расположение;
- Длина перекрываемого пространства.
Выполняя чертеж стропил, следует учитывать, что стропила или фермы стропил бывают висячие и наслонные (наиболее широко распространенный тип).
Чаще всего конструкция стропил выполняется в форме треугольника, обеспечивающей максимальную жесткость и экономичность.
Сложные фермы стропил включают в себя целый ряд различных дополнительных элементов, таких как:
- Стропильные балки, называемые также стропильными ногами;
- Затяжки;
- Ригели;
- Стойки;
- Подкосы и т.д.
Рассмотрим подробнее два основных типа стропил:
- Наслонные стропила устанавливаются в домах, где несущей стеной является средняя. В их состав входят две стропильные ноги, нижние концы которых опираются на мауэрлаты – несущие брусья, а верхние – на прогон конька, который поддерживается стойками. Стойки устанавливаются на лежень, расположенный на несущей внутренней стене. Мауэрлат и лежень служат для того, чтобы распределять нагрузку на стены. При отсутствии продольных внутренних стен стропила следует опирать на поперечные внутренние стены или на столбы, расстояние между которыми не превышает 6,5 метров. С помощью одной дополнительной опоры ширина перекрываемого помещения может быть увеличена до 12 метров, а с двумя опорами – до 15 или 16 метров. Увеличение пролета усложняет конструкцию, поскольку возникает необходимость вводить дополнительные элементы крыши, такие как стойки и подкосы, позволяющие повысить устойчивость и поперечную жесткость системы стропил, превращая конструкцию стропил в ферму.
- Висячие стропила применяются при отсутствии внутренних опор и опираются только на наружные стены. В состав висячих стропил входят наклонные стропильные ноги и растяжка, представляющая собой горизонтальный брус, воспринимающий распор от ног стропил. Нижними концами стропильные ноги при помощи затяжки опираются на мауэрлаты, а для верхних выполняется крепление стропил в коньке. Наиболее простым вариантом висячих стропил является треугольная симметричная ферма, причем объем перекрываемого пространства может составлять от 7 до 12 метров. Усилить конструкцию можно при помощи специальной стяжки – ригеля.
Важно: следует отметить, что изготовление висячих стропил является довольно трудоемким процессом, а их стоимость существенно превышает стоимость наслонных. Поэтом довольно часто с целью снижения стоимости строительства оборудуют комбинированные системы стропил, в состав которых входят и висячие, и наклонные стропила.
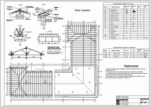
Разработка плана стропил


При разработке плана стропил выполняют следующие процедуры:
- Нанесение модульных координационных осей, к которым привязываются значения толщины капитальных стен здания. При этом вынос венчающего карниза используемой конструкции отображается на плане стен наружных в виде контурной линии;
- На плане вычерчиваются каналы дымовые и вентиляционные каналы и трубопроводы, расположение которых в обязательном порядке учитывается в процессе размещения элементов проектируемой системы стропил;
- Разрабатывают план выбранной формы крыши в виде эскиза, на котором должно также учитываться расположение стен. На план в виде линий наносятся конек, ендовы, ребра, а также следующие элементы:
- Форма скатов крыши;
- Направление уклона скатов;
- Расположение слуховых окошек;
- Расположение фронтонов и т.д.
- Используя план крыши, производят вычерчивание плана системы стропил, на котором должно быть указано размещение следующих элементов:
- Подстропильная балка;
- Мауэрлаты;
- Стропильные ноги с кобылками и затяжками, опирающиеся на мауэрлаты;
- Стойки, также как и продольные подкосы, обеспечивающие необходимую пространственную жесткость стропильной системы (отображаются в виде штриховой линии);
Поперечные сечения различных элементов принимают ориентировочные значения в зависимости от того, какой тип древесины будет использован при строительстве (доски, брусья или бревна). Шаг стропил, то есть расстояние между ними, выбирается в зависимости от того, какой именно строительный лес применяется при строительстве кровли, а также от веса используемого для покрытия материала:
- Шаг стропил деревянных составляет 100-120 см;
- Шаг изготовленных из брусьев стропил – от 150 до 180 см.
Кроме того, расстояние между стропилами может изменяться при пропускании между ними труб дымохода или вентиляции.
Кроме того, данные трубы могут пропускаться путем прерывания стропильных ног, для этого их свободные концы опираются на перемычки из древесины, расположенные между соседними стропилами, для крепления которых выполняется специальный запил стропил.
В случае двускатных или щипцовых крыш слуховые окна размещаются во фронтонах, расположенных на торцах. Это повышает эффективность вентилирования чердачного помещения в теплое время года.
При разработке проекта четырехскатной крыши следует отобразить на плане такие элементы, как накосные диагональные ноги стропил, нарожники, опирающиеся на них, а также располагающиеся на вальмах слуховые окошки.
В случае, если в подкровельном пространстве оборудуется мансардный этаж, на плане следует отобразить также верхние балки обвязки стен каркаса, на которые будут опираться стропила.
Следует также учитывать, что разработка плана системы стропил должна выполняться параллельно разработке плана различных конструктивных разрезов проектируемого здания, которые должны быть связаны между собой.
- На чертеже стропильного плана проставляются значения расстояний между модульными осями проектируемого здания, к которым привязываются значения толщины стен. Размерные линии, на которых отмечается цепочка шагов между стропильными осями, наносятся на план ближе к его контуру. Внутри же плана указывают расстояния между стойками, трубами вентиляции и дымохода, а также между различными элементами конструкции стропильной системы. Кроме того, на плане необходимо отобразить выноски, на которых будут указаны значения длин и поперечных сечений перечисленных элементов.
Стропильная система является важнейшим элементом конструкции возводимой кровли, от правильности проектирования которой зависят такие показатели, как надежность крыши, ее безопасность и длительность срока эксплуатации.
Поэтому, не обладая требуемыми навыками и умениями, лучше не браться за составление плана стропил, а доверить выполнение данной работы квалифицированному специалисту, обладающему необходимым опытом.